The Boynton Beach CRA continues to make meaningful progress in expanding affordable and workforce homeownership opportunities through its infill housing initiative.
At the September 9, 2025, Board meeting, staff presented an inventory of BBCRA-owned residential lots that are vacant and ready for redevelopment. These properties represent a valuable opportunity to bring new housing options to the community. The Board identified the following sites for development:
- 135 NE 3rd Avenue
- 407 NE 1st Street
- 524 NW 3rd Street
- 507 NW 12th Avenue
- NW 11th Avenue (Lot 348)

Building on that momentum, the BBCRA Board approved an Invitation to Negotiate (ITN) for the Development of Affordable/Workforce Housing Infill Housing at its December 9, 2025 meeting. The ITN was officially issued on December 12, 2025, inviting qualified developers to submit proposals.
By the February 10, 2026, submission deadline, one proposal was received from Lennar Homes LLC. Following a presentation at the March 9, 2026 Board meeting, the Board directed staff to enter into negotiations with the developer and return with a proposed Purchase and Development Agreement for consideration.

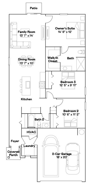
The proposed homes would offer approximately 1,504 square feet of living space and feature three bedrooms, two bathrooms, a two-car garage, and hurricane-impact construction. To ensure long-term affordability, each home would include a 15-year deed restriction and be sold in accordance with Palm Beach County’s Workforce Housing Program.
The full presentation is available as part of the March 9 meeting agenda. Stay tuned for more updates as this initiative moves forward.




Leave a comment